Skip to content
Updated

Whole 0 bed property for rent

Team up with other Roomies to rent this property from rentals.ca
rentals.ca logo

99 Broadway Avenue

Toronto, ON

1 bathroom
Rent
$1,700 per month
Available on
Now

About the property

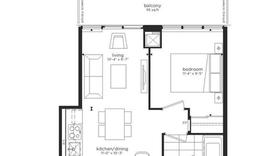
99 Broadway Avenue

Welcome To The Citylights On Broadway By Pemberton Group. Prices and availability are subject to change. Not all units come with parking/storage included. Please submit your inquiry to get the updated list of available units.

Potential roomies

Roomies interested in teaming up in properties in this area.