Skip to content
Anita's room
Free to message

Hickory Street West

Private room with shared bathroom
Rent
$767 per month
Bills
Included
Property type
Apartment
Room furnishing
Unfurnished
Preferred gender
Females
Available on
June 1
Parking available
Internet included
Accessible property
LGBTQ+ friendly
Cannabis friendly
Students welcome

About the room

Lease Takeover – (Female Only)

Hey! I’m looking for someone to take over my lease at starting June 2026 to April 2027 (with the option to extend after if you want).

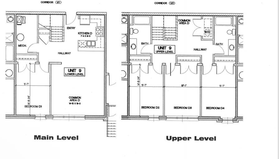
It’s a 4-bedroom, 2 large bathroom, 2-storey apartment, perfect for students or anyone looking for a comfortable shared space.

Details: • Rent: $767/month + $20 renters insurance (if you don’t already have your own) • Everything included • In-unit laundry • Kitchen + living room on the second floor • Spacious layout with lots of room

Upfront Costs: • First + last month’s rent • One-time yearly utility fee: $850

Looking for female tenants only.

I need this taken over ASAP, so if you or someone you know is interested, please reach out!!

About the roomies

the unit is currently empty so if you are a group of 4 that also works perfectly!

Anita's verifications

Contact Anita

Anita
Anita
Online this month

Anita speaks English.

To message Anita or view their phone number you need to be a member. Joining and communicating is free.

Already a member? Login now.

It is free to message and reply to any other user on Roomies – learn more

See Anita's other listings

  • Anita, 22 years, Female, budget $1,200 per month
    Anita