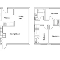
Unfurnished room in a townhouse
1 main bedroom available to rent in a 3 bedroom townhouse. The bedroom is unfurnished but the rest of the house is set up. I’ve been using the third bedroom as a hobby room and am perfectly open to sharing the space. Quiet neighbours, I hardly ever hear them. Nice area, always feel safe walkin...
Room near: Buena Vista, Saskatoon, SK, Haultain Gladmer, Saskatoon, SK, Queen Elizabeth, Saskatoon, SK, Haultain Nutana, Saskatoon, SK & Queen Elizabeth Churchill, Saskatoon, SK.