Skip to content

Whole 1 bed property for rent

Team up with other Roomies to rent this property from rentals.ca
rentals.ca logo

1033 Marinaside Crescent

Vancouver, BC

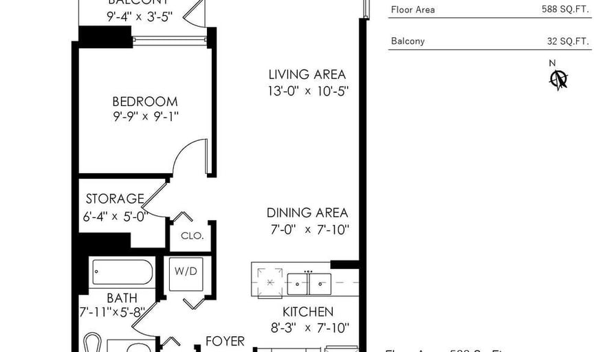
1 bedroom
1 bathroom
1 park
Rent
$3,300 per month
Available on
Now

About the property

1033 Marinaside Crescent

🌟 Luxury Waterfront Living in Yaletown – 1 Bed + Den/Storage Condo with Panoramic Views 🌟📍 Address: 3702–1033 Marinaside Crescent, Vancouver💲 Rent: $3,300/month (Unfurnished)📅 Available: Jan 1, 2026🚭 No smoking | One small pet allowed🚙 1 parking spot close to the elevatorWelcome to Marinaside Resort Residences, one of Vancouver’s most prestigious waterfront communities! This high-floor 1-bedroom + den suite offers unobstructed views of the water, city, and mountains from every room — a rare opportunity to live above it all in the heart of Yaletown.✨ Suite Features:Bright, open-concept layout with floor-to-ceiling windowsModern kitchen with granite countertops & full-size appliancesIn-suite laundryPrivate balcony to soak in the stunning vistas 🏢 Building Amenities:Indoor pool, hot tub, sauna & steam roomFully equipped fitness centre24-hour concierge serviceLounge, media room & library1 secure underground parking stall (EV charging coming soon) 🌆 Location Highlights:Steps to the Seawall, False Creek Marina, and David Lam ParkShort walk to Yaletown’s vibrant shops, cafes, and fine diningMinutes to Canada Line SkyTrain and Downtown Vancouver 📞 Interested? Contact now to schedule a viewing and make this exceptional home yours!

Potential roomies

Roomies interested in teaming up in properties in this area.